Skip to main content
Home

Hauptnavigation

  • Location Analysis
    • Business Location Explorer ©
  • Commercial real estate
    • Commercial areas
    • Commercial areas
    • Industrial areas
    • Commercial properties
    • Rent warehouse
    • Rent industrial property
    • Business incubators
  • Services
    • For companies

Explorer

Benutzermenü
  • Log in
Advanced language selector block

Breadcrumb

  1. Home
  2. Business location Mühldorf a.Inn

Warehouse eastern of Munich

Germany > Bavaria > Mühldorf a.Inn, Landkreis > Mühldorf a.Inn
Business location information: Business location Mühldorf a.Inn
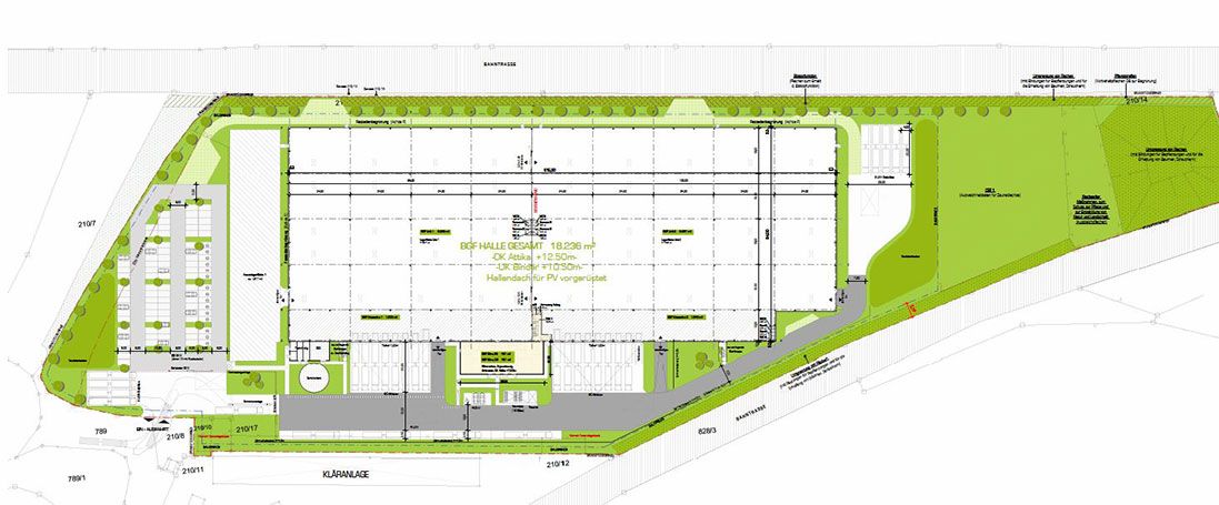
Warehouse eastern of Munich Floorplan
Informationen about the property
Free of commission
Type of use
Storage/ logistics space
Total area
8 100 m²
Effective area
8 100 m²
Smallest unit
8 100 m²
Office and social space
435 m²
24/7 delivery
Yes
Height
12,10 m
Availability
Immediately
Rent/purchase
Rent
Description of the commercial property

Object not yet built. Individual requirements of the future user can be taken into account during development. Completion will take place 12 months after signing the lease.

Motorway
Motorway (distance)
2 km
Name of motorway
A94
Name of motorway junction
Mühldorf-West (A94)
Airport
Airport (distance)
52 km
Name of airport
Flughafen München „Franz Josef Strauß“
Port
Port (distance)
72 km
Name of port

Hafen Deggendorf

Port type
Inland port
Waters

Donau

Modality (port)
trimodal
Freight village
Freight village (distance)
87 km
Name of freight village
GVZ Regensburg
Modality (freight village)
trimodal
Contact
My|BusinessLocation
Commercial Property Management
Thomas Leibold
m²

Contact

(Opens in a new window) (Opens in a new window) (Opens in a new window) (Opens in a new window)

Fußzeile "Mehr" Links

  • About us
  • Information about location analysis in Germany
  • Business Location Germany

Fußzeile

  • Contact
  • General Terms and Conditions
  • Terms and Conditions of Use
  • Privacy policy
  • Imprint